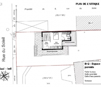
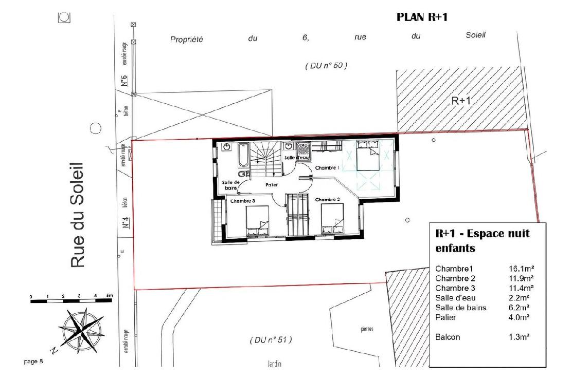
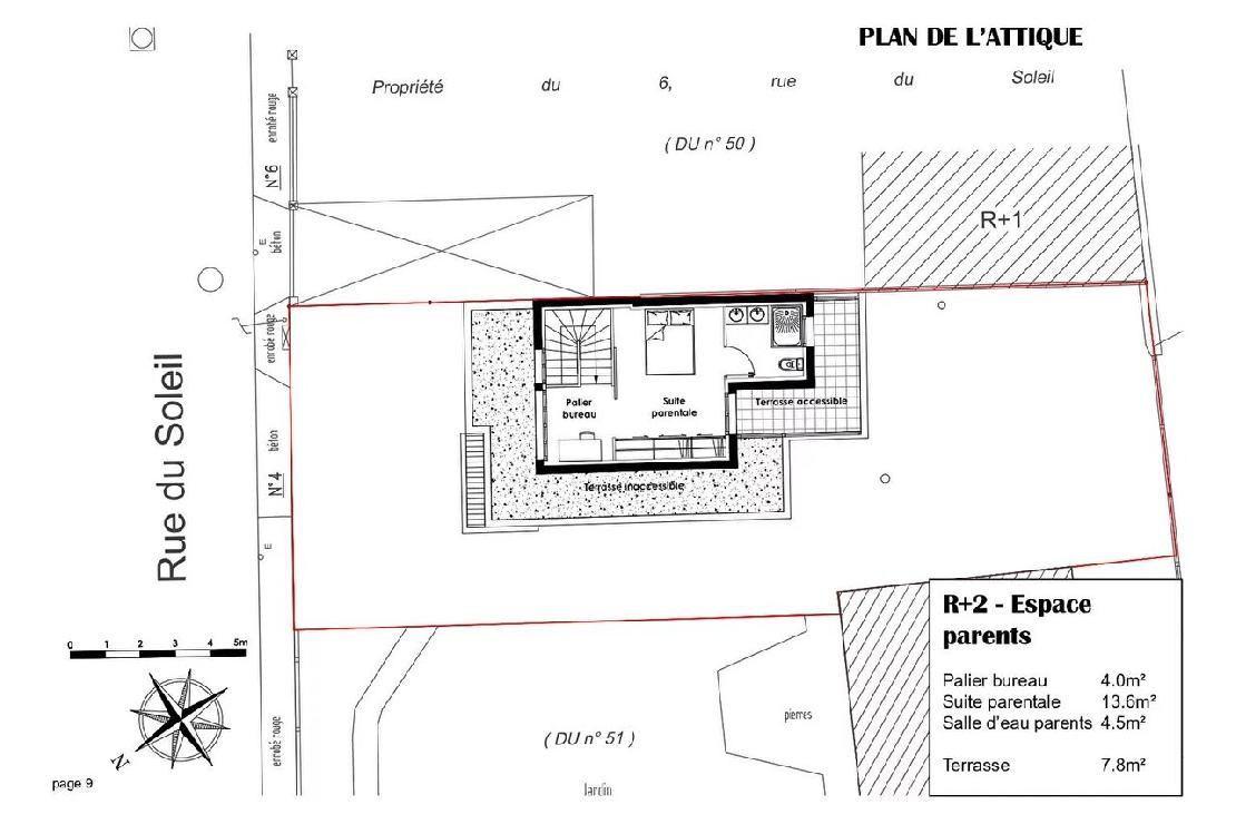
Descriptif: MAISON DE 50M² EDIFIEE SUR UN TERRAIN DE 220 M² avec possibilité de construire maison d'habitation en r1 attique pour surface totale nette de 150 m² Terrain constructible de 222 m2 en Zone U3 du PLU .
Façade de 10 M.
Possibilité de construire une maison uniquement, pas de collectif.
Libre de constructeur .
POUR PLUS D'INFORMATIONS NOUS CONSULTER .